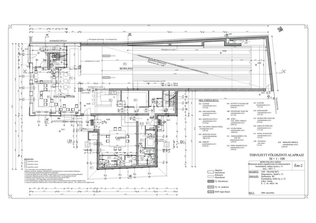
Szombathely - bowlingpálya, étterem
Tervező: Litkei Tamás

Ez az épület egy régi kiskocsma helyén épült 2004-ben, annak megtartható homlokzati megoldásait felhasználva:
A tervezés során ?érdekes? összefüggésekre találtunk: Levéltári anyagokat böngészve az étterem funkció mellé tervezendő bowlingpálya kapcsán kiderült, hogy a háború előtt a korcsma szolgáltatás része volt az itteni, első fedett kuglipálya is...
Az eredeti teljes boltíves bejáratból így lett kugligolyó, az eredeti kerthelyiség pavilonja helyére így került önálló épületbe a játékterem, és az eredeti homlokzati stukkó konzolok közé most már nem az aznapi fogásokat tartalmazó palatábla, hanem egy új ablak, ahonnan élőben látjuk a ?felhozatalt?.









