Ugrás a tartalomra
Országépítő
Építészet | Környezet | Társadalom
Menü
Hírek
Épületek
Nézőpont
Média
Vándoriskola
Könyvek
Előfizetés
Élőépítészet
folytatni a Teremtést - Magyar élő építészet a 20 éves Kós Károly Egyesülés kiállítása az Iparművészeti Múzeumban
Épületek
Elődök
Külföld
Időrend
Miskolc - Római katolikus és görögkeleti templom, jezsuita gimnázium
Tervező: Ferencz István
Épületek
Építészek
Kós Károly Egyesülés tagok
AXIS Építésziroda Kft.
Erhardt Gábor
Salamin Ferenc
Salamin Miklós
Tusnády Zsolt
Varga Csaba
BODONYI Építész Kft.
Beöthy és Kiss Építésziroda
Bogos Ernő
Csémy Olivér
DÉVÉNYI és Társa Építésziroda Kft.
Eszenyi Ákos
Esztány Győző
Farkas Miklós
HADAS Építész Kft
Hayde Tibor Ervin
Kvadrum Építésziroda
KÖR Építész Stúdió Kft.
KŐSZEGHY Építészet Bt.
Litkei Tamás
Litomericzky Nándor
MAKONA Építész Tervező és Vállalkozó Kft.
Mérmű 87 Építészeti és Geodéziai Kft.
Müller Csaba
PAGONY Táj- és Kertépítész Iroda Kft.
PARALEL Építésziroda Kft.
SÁROS és Társa Építésziroda Bt.
TRISKELL Kft
TÁJRAJZ Tájépítész Bt.
Unitef
Vándorépítész Kft.
Egyesülésen kívüli építészek
Belsőépítészet
Faluházak
Fontosabb épületek
Középületek
Lakóházak
Szakrális épületek
Ökológia
Jelenlegi hely
Címlap
»
Épületek
»
Építészek
»
Kós Károly Egyesülés tagok
»
AXIS Építésziroda Kft.
»
Erhardt Gábor
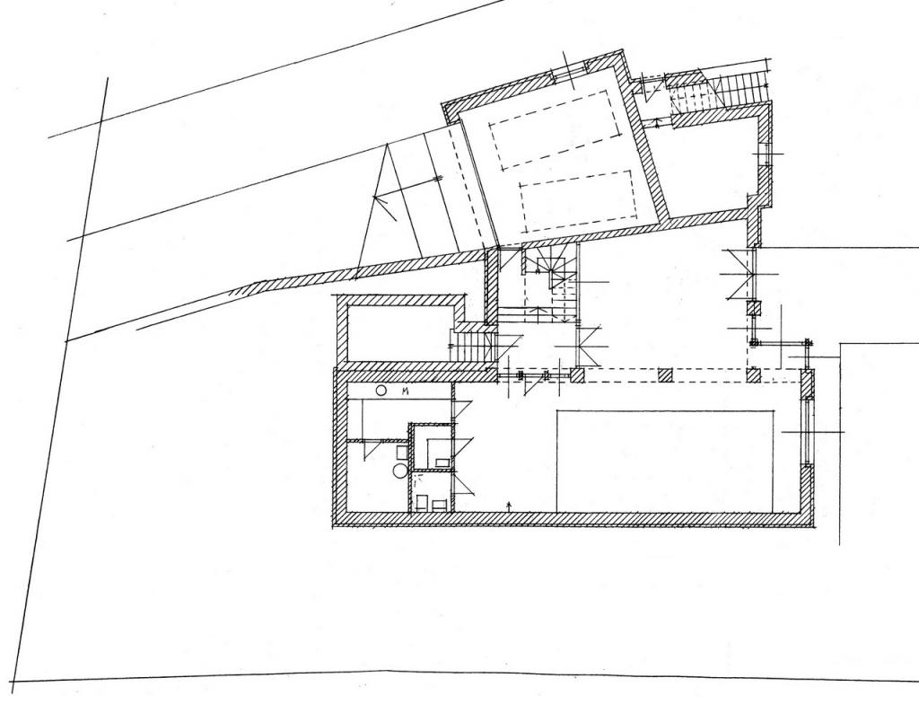
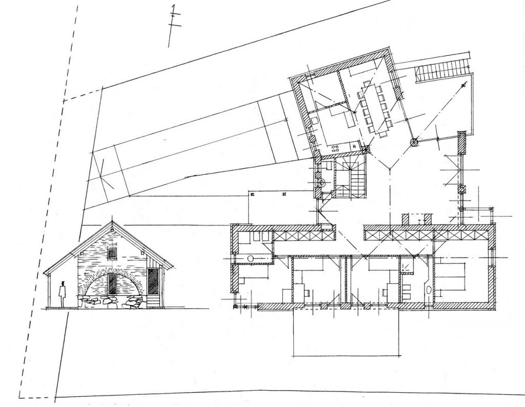
Miskolc - családi ház
Tervező:
Erhardt Gábor