Élőépítészet
folytatni a Teremtést - Magyar élő építészet a 20 éves Kós Károly Egyesülés kiállítása az Iparművészeti Múzeumban
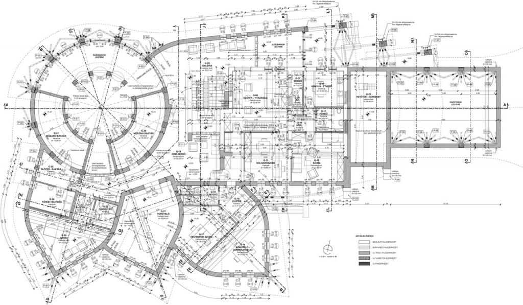
Felcsút - Puskás Ferenc Labdarúgó Akadémia élettani épület

Felcsút, Puskás Ferenc Labdarúgó Akadémia
Ügyvezetési és élettani laborépület
Tervező: Dobrosi Tamás okleveles építészmérnök
Belsőépítész: Snopper Zsuzsanna
Tervezés éve: 2008.
Kivitelezés éve: 2008-2009.
Makona KFT.
Fotó: Tóth Márton, Dobrosi Tamás